Slimdrive SL-RC2 * Automatikus lineáris tolóajtó rendszer RC2-es ellenállási osztályú betörésgátlással
- Tanúsított, RC2 (Resistance Class) ellenállási osztályú betörésgátlás
- Az RC2 funkció csak „Éjszakai” üzemmódban áll rendelkezésre, amikor az ajtó rudazatos reteszeléssel van reteszelve
- Rudazatos reteszeléssel és megerősített profilkomponensekkel felszerelve
- Rendkívül halk futású, kopásmentes, egyenáramú, mindössze 7 cm magasságú motor
- Nyílt szabvány (BACnet) segítségével hálózatba kapcsolható és integrálható az épületautomatizálásba.
- Önálló hibafelismerés és naplózás
- Szabadon paraméterezhető be- és kimenetek különböző funkciókhoz
- Integrált akkumulátor vésznyitáshoz biztonsági szempontból fontos hibák, pl. áramszünet esetén
Alkalmazási területek
- Egy- és kétszárnyú tolóajtó rendszerek
- Maximális biztonsági követelményeket támasztó bel- és kültéri ajtók
- 800 és 3000 mm közötti nyitási szélességek lehetségesek
- Szárnyankénti szárnysúly max. 120 kg
- A célra alkalmas profilrendszerek finomkeretes, RC2 ellenállási osztályú ISO és Mono üveges profilrendszerek
Beszerelési helyzetek a referenciaobjektumokban és a videókban
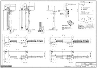
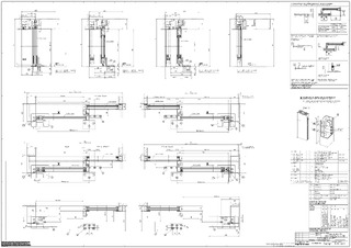
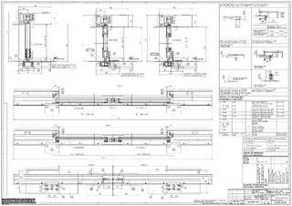
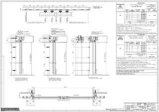
Termékspecifikációk
| Slimdrive SL-RC2 | |
| Egyszárnyú ajtórendszerekhez | Igen |
| Kétszárnyú ajtórendszerekhez | Igen |
| ISO üveg finomkeret | Igen |
| MONO-Glas finomkeret | Igen |
| Magasság | 70 mm |
| Mélység | 190 mm |
| Szárnysúly (max.), egyszárnyú | 120 kg |
| Szárnysúly (max.), kétszárnyú | 120 kg |
| Nyitási szélesség, egyszárnyú | 800 mm - 3000 mm |
| Nyitási szélesség, kétszárnyú | 900 mm - 3000 mm |
| Üzemi hőmérséklet | -15 - 50 °C |
| Védettség | IP20 |
| Hálózati leválasztás | Főkapcsoló a motorban |
| Szabványoknak való megfelelés | DIN 18650, DIN EN ISO 13849: Performance Level D, EN 16005 |
Letöltések
LABELLING OBLIGATION: © Zweitze Korten
LABELLING OBLIGATION: © GEZE GmbH
Változatok és tartozékok
* Megjegyzés a bemutatott termékekkel kapcsolatban
A fent említett termékek formájukat, típusukat, jellemzőiket és funkcióikat (kialakítás, méretek, elérhetőség, jóváhagyások, szabványok stb.) tekintve országonként eltérőek lehetnek. Kérdések esetén kérjük, forduljon GEZE kapcsolattartójához vagy küldjön nekünk E-Mail .