TS 5000 RFS teljes csomag * Felső szerelésű, csúszósínes ajtócsukó EN 3-6 elektromos szabadonfutó funkcióval és füstjelző központtal
- Fokozatmentesen elölről beállítható csukóerő
- Az optikai csukóerő kijelzés biztosítja a helyes beállítást
- A csukási sebesség szeleppel elölről beállítható
- A végzárás szeleppel elölről beállítható
- Elektromos szabadonfutó funkció
- Az ajtócsukó jobbra és balra nyíló ajtókon használható
- Tápegység 230 V-os tápfeszültséghez
- Füstkapcsoló riasztási küszöb követéssel, szennyeződés kijelzővel és nem látható kioldógombbal a teszteléshez
- Kiegészítő füstkapcsoló csatlakoztatható
- +/- 2 mm-es magasságkiegyenlítés lehetséges
Alkalmazási területek
- Tűz- és füstgátló ajtók
- Jobbos és balos ütközőajtók
- Max. 1400 mm szárnyszélességű ütközőajtók
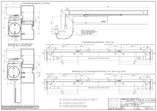
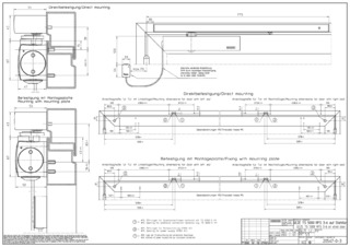
- Ajtólapra szerelés a pánt felőli oldalon
- Rögzítőrendszerek beépített elektromos szabadonfutós rögzítéssel
- Akadálymentes hozzáférés a DIN 18040 szerint
Termékspecifikációk
| TS 5000 RFS teljes csomag | |
| EN 1154 szerinti csukóerő | EN 3 - 6 |
| Szárnyszélesség (max.) | 1400 mm |
| Szerelési mód | Ajtólapra szerelés a pánt felőli oldalon |
| Nyílásszög (max.) | 180 ° |
| Azonos kivitelű balra nyíló ajtó és jobbra nyíló ajtó | Igen |
| Tápfeszültség | 230 V AC |
| Bemeneti feszültség | 230 V AC |
| Tápfeszültség frekvenciája | 50/60 Hz |
| Bekapcsolási időtartam | 100 % |
| Védettség | IP20 |
| Szabványoknak való megfelelés | EN 1154:1996/A1:2002/AC:2006, EN 1155 |
| Engedélyek | A DIBt általános építésfelügyeleti engedélye rögzítőrendszerként |
| Alkalmazhatóság tűzgátló ajtóként | Igen |
| Szerelőlap EN 1154 melléklet szerinti furatképpel | Igen |
| Hosszúság | 327 mm |
| Szélesség | 47 mm |
| Magasság | 60 mm |
| Szabadonfutási tartomány | 85 ° - 160 ° |
| Beállítható csukóerő | Igen, fokozatmentes |
| Csukási sebesség beállítható | Igen |
| Beállítható végzárás | Igen, szeleppel |
| Integrált nyitáscsillapítás | Nem |
| Csukóerő-állítás helye | Elöl |
| Optikai csukóerő kijelző | Igen |
| Biztonsági szelep túlterhelés ellen | Igen |
| Termostabil szelepek | Igen |
| Rögzítés | Elektromos, szabadonfutó funkcióhoz |
| Integrált füstkapcsoló | Igen |
| Szennyeződés kijelző | Igen |
| Riasztási küszöb követés | Igen |
| Integrált tápegység | Igen |
| Rugalmas nyitási csillapítás | Igen |
Letöltések
LABELLING OBLIGATION: © GEZE GmbH
LABELLING OBLIGATION: © GEZE GmbH
Változatok és tartozékok
* Megjegyzés a bemutatott termékekkel kapcsolatban
A fent említett termékek formájukat, típusukat, jellemzőiket és funkcióikat (kialakítás, méretek, elérhetőség, jóváhagyások, szabványok stb.) tekintve országonként eltérőek lehetnek. Kérdések esetén kérjük, forduljon GEZE kapcsolattartójához vagy küldjön nekünk E-Mail .