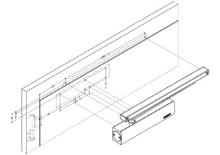
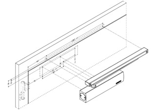
TS 5000 L ECline * Felső szerelésű, csúszósínes ajtócsukó pánttal ellentétes oldalra akadálymentes, egyszárnyú, max. 1250 mm szárnyszélességű ajtókhoz nyitásrásegítéssel
- Fokozatmentesen beállítható csukóerő EN 3-5 között
- Akadálymentes a DIN 18040 szerint EN 5-ig (1250 mm szárnyszélesség)
- Jobbra és balra nyíló ajtókhoz átállítás nélkül használható
- Nyitásrásegítés az ajtó könnyebb nyitása és a kényelmes átjárás érdekében
- Szélterhelés vagy nyomáskülönbség által érintett ajtók esetében a nyitásrásegítés lekapcsolható
- Hidraulikus végzárás, amely röviddel a csukott helyzet előtt felgyorsítja az ajtót
- A csukási sebesség egyénileg beállítható
- Integrált nyitáscsillapítás, erőteljesen lefékezi a kicsapódó ajtót
- Optikai csukóerő kijelző a beállítás könnyű ellenőrzéséhez
- Az összes funkció elölről beállítható
Alkalmazási területek
- Tűz- és füstgátló ajtók
- Jobbos és balos ütközőajtók
- Max. 1250 mm szárnyszélességű ütközőajtók
- Ajtólapra szerelés a pánttal ellentétes oldalon és ajtótokra szerelés a pántoldalon
- Akadálymentes hozzáférés a DIN 18040 szerint EN 5-ig
Beszerelési helyzetek a referenciaobjektumokban és a videókban
Termékspecifikációk
| TS 5000 L ECline | |
| EN 1154 szerinti csukóerő | EN 3 - 5 |
| Akadálymentes a DIN 18040 szerint eddig a szárnyszélességig (max.) mm-ben | 1250 mm |
| Szárnyszélesség (max.) | 1250 mm |
| Szerelési mód | Ajtótokra szerelés a pántoldalon, Ajtólapra szerelés a pánttal ellentétes oldal |
| Nyílásszög (max.) | 180 ° |
| Alkalmazhatóság tűzgátló ajtóként | Igen |
| Beállítható csukóerő | Igen, fokozatmentes |
| Csukási sebesség beállítható | Igen |
| Beállítható végzárás | Igen, szeleppel |
| Integrált nyitáscsillapítás | Igen, hidraulikusan beállítható |
| Integrált nyitásrásegítés | Igen |
| Csukóerő-állítás helye | Elöl |
| Optikai csukóerő kijelző | Igen |
| Rögzítés | Opcionális |
Letöltések
LABELLING OBLIGATION: © GEZE GmbH
Változatok és tartozékok
* Megjegyzés a bemutatott termékekkel kapcsolatban
A fent említett termékek formájukat, típusukat, jellemzőiket és funkcióikat (kialakítás, méretek, elérhetőség, jóváhagyások, szabványok stb.) tekintve országonként eltérőek lehetnek. Kérdések esetén kérjük, forduljon GEZE kapcsolattartójához vagy küldjön nekünk E-Mail .