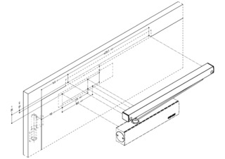
TS 5000 * Felső szerelésű, csúszósínes ajtócsukó egyszárnyú, max. 1400 mm szárnyszélességű ajtókhoz
- Fokozatmentesen beállítható csukóerő EN 2-6 között
- Jobbra és balra nyíló ajtókhoz átállítás nélkül használható
- Hidraulikus végzárás, amely röviddel a csukott helyzet előtt felgyorsítja az ajtót
- A csukási sebesség egyénileg beállítható
- Integrált nyitáscsillapítás, erőteljesen lefékezi a kicsapódó ajtót
- Optikai csukóerő kijelző a beállítás könnyű ellenőrzéséhez
Ez az egyszárnyú ajtókhoz való felső szerelésű ajtócsukó letisztult megjelenésű. Tűz- és füstgátló ajtókra történő felszerelése engedélyezett.
Alkalmazási területek
- Tűz- és füstgátló ajtók
- Jobbos és balos ütközőajtók
- Max. 1400 mm szárnyszélességű ütközőajtók
- Ajtólapra szerelés a pánt felőli oldalon és ajtótokra szerelés a pánttal ellentétes oldalon
Beszerelési helyzetek a referenciaobjektumokban és a videókban
Termékspecifikációk
| TS 5000 | |
| EN 1154 szerinti csukóerő | EN 2 - 6 |
| Akadálymentes a DIN 18040 szerint eddig a szárnyszélességig (max.) mm-ben | 1100 mm |
| Szárnyszélesség (max.) | 1400 mm |
| Szerelési mód | Ajtólapra szerelés a pánt felőli oldalon, Ajtótokra szerelés a pánttal ellentétes oldalon |
| Nyílásszög (max.) | 180 ° |
| Alkalmazhatóság tűzgátló ajtóként | Igen |
| Beállítható csukóerő | Igen, fokozatmentes |
| Csukási sebesség beállítható | Igen |
| Beállítható végzárás | Igen, szeleppel |
| Integrált nyitáscsillapítás | Igen, hidraulikusan beállítható |
| Csukóerő-állítás helye | Elöl |
| Optikai csukóerő kijelző | Igen |
| Rögzítés | Opcionális |
Letöltések
LABELLING OBLIGATION: © GEZE GmbH
LABELLING OBLIGATION: © GEZE GmbH
LABELLING OBLIGATION: © GEZE GmbH
LABELLING OBLIGATION: © Martin Jakob / GEZE GmbH
LABELLING OBLIGATION: © Robert Les / GEZE GmbH
LABELLING OBLIGATION: © Dirk Wilhelmy / GEZE GmbH
LABELLING OBLIGATION: © Robert Les / GEZE GmbH
LABELLING OBLIGATION: © Robert Les / GEZE GmbH
LABELLING OBLIGATION: © Robert Les / GEZE GmbH
LABELLING OBLIGATION: © Lothar Wels / GEZE GmbH
LABELLING OBLIGATION: © Dirk Wilhelmy / GEZE GmbH
LABELLING OBLIGATION: © Lothar Wels / GEZE GmbH
LABELLING OBLIGATION: © Dirk Wilhelmy / GEZE GmbH
LABELLING OBLIGATION: © Nikolaus Grünwald / GEZE GmbH
LABELLING OBLIGATION: © Lothar Wels / GEZE GmbH
LABELLING OBLIGATION: © Robert Sprang / GEZE GmbH
LABELLING OBLIGATION: © Jürgen Pollak / GEZE GmbH
LABELLING OBLIGATION: © Jürgen Pollak / GEZE GmbH
LABELLING OBLIGATION: © Jürgen Pollak / GEZE GmbH
LABELLING OBLIGATION: © Robert Sprang / GEZE GmbH
LABELLING OBLIGATION: © Robert Sprang / GEZE GmbH
LABELLING OBLIGATION: © Dirk Wilhelmy / GEZE GmbH
LABELLING OBLIGATION: © Jürgen Biniasch / GEZE GmbH
LABELLING OBLIGATION: © Robert Les / GEZE GmbH
Változatok és tartozékok
* Megjegyzés a bemutatott termékekkel kapcsolatban
A fent említett termékek formájukat, típusukat, jellemzőiket és funkcióikat (kialakítás, méretek, elérhetőség, jóváhagyások, szabványok stb.) tekintve országonként eltérőek lehetnek. Kérdések esetén kérjük, forduljon GEZE kapcsolattartójához vagy küldjön nekünk E-Mail .