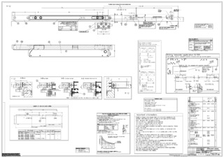
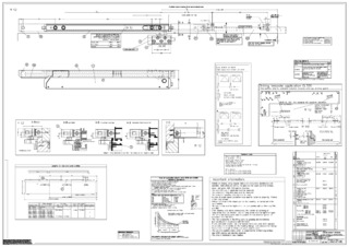
OL 320 * Surface-mounted fanlight opener with an opening width of 320 mm
- Achieves the full opening width of 320 mm for all leaf heights
- The opening width can be adjusted
- Little space necessary thanks to flat design of the scissors
- Safety button on the scissors shows scissors engagement in spherical head of leaf bracket
- Integrated leaf locking mechanism in the scissors ensures secure locking
- Scissor unhooking by pressing the release button facilitates window cleaning from inside and outside
- Unhinging inhibitor offers additional safety
- Lock carrier and additional locking mechanisms increase safety and air-tightness
- The scissors and the link arm can be installed from the front
- Leaf bracket fits all overlap heights and materials
Application Areas
- Convenient daily ventilation for rooms and staircases
- For windows with high leaf weights up to max. 250 kg
- Inward opening bottom-hung windows
- Automation by E 212 electric linear drive
- Installation on wooden, plastic or aluminium windows
- Frame installation
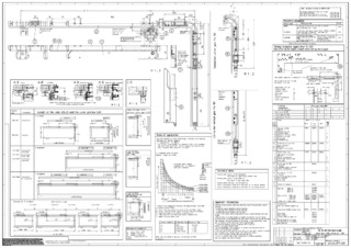
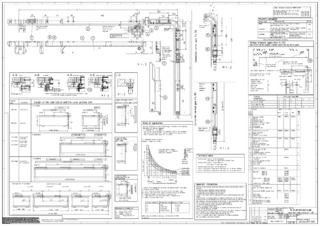
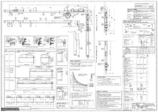
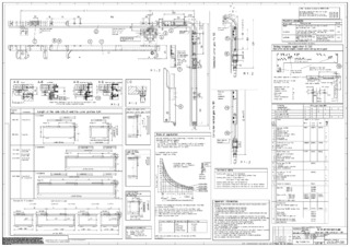
Technical data
| OL 320 | |
| Length | 436 mm |
| Depth | 65 mm |
| Height | 26 mm |
| Opening width (max.) | 320 mm |
| Leaf width (min.) | 680 mm |
| Leaf height (min.) | 400 mm |
| Leaf weight (max.) | 250 kg |
| Fitting stroke | 70 mm |
| Adjustable opening width (stroke reduction) | Dependent |
| Leaf locking mechanism integrated in the scissors | Yes |
| Scissor unhooking by release button | Yes |
| Unhinging inhibitor | Yes |
Downloads
LABELLING OBLIGATION: © GEZE GmbH
LABELLING OBLIGATION: © GEZE GmbH
LABELLING OBLIGATION: © GEZE GmbH
Variants & Accessories
* Notice about the products displayed
The products mentioned above may vary in form, type, characteristics and function (design, dimensions, availability, approvals, standards etc.) depending on the country. For questions please contact your GEZE contact person or send us an E-Mail .