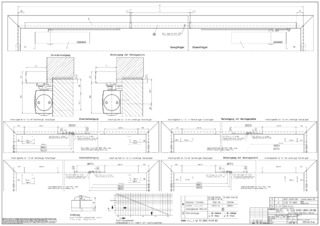
Guide rail 2-leaf

TS 5000 L-E-ISM * Overhead door closer system with guide rail on opposite hinge side for double leaf doors up to 2800 mm hinge clearance with integrated closing sequence control and electric hold-open device

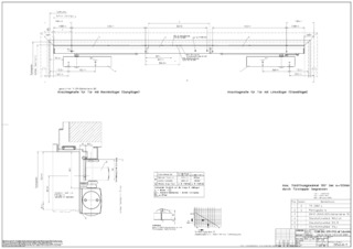
Door closer TS 5000 L-ISM 2-leaf overhead door closer system with integrated mechanical closing sequence control, standard installation on door leaf/opposite hinge side
  • System comprising two door closers TS 5000 L and an E-ISM guide rail
  • Closing force of EN 2-6 with variable adjustment
  • Operating voltage 24 V DC
  • Electric hold-open device in the guide rail with hold-open area from 80°
  • Electric hold-open device in the guide rail with hold-open area of 80°-130°
  • Closing sequence control holds the active leaf in the waiting position until the passive leaf is closed
Show more
  • Hydraulic latching action which accelerates the door shortly before it is closed
  • Closing speed can be individually adjusted
  • Integrated back check, slows down doors that are thrown open forcefully
  • Visual closing force display for easy control of the setting
  • All functions can be adjusted from the front
Contact us

Application Areas

  • Fire and smoke protection doors
  • Double leaf single-action doors
  • Symmetrical and asymmetrical division of door possible
  • Single-action doors up to 2800 mm hinge clearance and 1400 mm leaf width
  • Minimum hinge clearance 1360 mm, minimum width of the passive leaf 380 mm
  • Panic function available on the active leaf
  • Door leaf installation opposite hinge side
  • Hold-open systems with integrated hold-open device

Technical data

TS 5000 L-E-ISM
Barrier-free in accordance with DIN 18040 up to leaf width (max.) in mm 1400 mm
Leaf width (max.) 1400 mm
Type of installation Door leaf installation opposite hinge side
Opening angle (max.) 130 °
Input voltage 24 V DC
Minimum hinge clearance 1360 mm
Minimum passive leaf width 380 mm
Suitability for fire protection doors Yes
Closing force adjustable Yes, stepless
Adjustable closing speed Yes
Latching action adjustable Yes, via valve
Back check integrated Yes, hydraulically adjustable
Position of closing force adjustment Front
Visual closing force display Yes
Hold-open function Electrical
Hold-open device on the active leaf / passive leaf Yes / Yes
Hold-open range 80 °
Closing sequence control integrated Yes

Downloads

Variants & Accessories

Contact