GEZE ActiveStop integrated * Door damper on both sides for interior wooden swing doors
- Door opening angle with variable adjustment from 80°-140°
- Can be used for right and left hand doors without conversion
- Soft opening and closing of doors up to max. 45 kg leaf weight
- Gentle stopping, quiet closing and comfortable keeping open of doors
- Practically eliminates slamming doors, trapped fingers, and damage to walls and furniture
- Secure holding of the door when open, meaning no door is stopper necessary
- Opening and closing damping when installed can be set via a valve
- Integrated safety valve offers overload protection
Application Areas
- Right and left timber single-action doors indoors
- Room doors with high access convenience
- Single-action doors up to 1100 mm leaf width
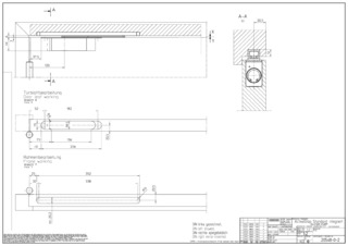
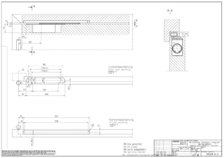
- Integrated installation in the door leaf
- Barrier-free access in accordance with DIN 18040-2
Installation situations in reference objects and videos
Technical data
| GEZE ActiveStop integrated | |
| Depth | 28 mm |
| Height | 64 mm |
| Leaf weight (max.) | 45 kg |
| Leaf width (max.) | 1100 mm |
| Category of door | flush-mounted, rebated |
| Leaf thickness from | 38 mm |
| Identical design for DIN left and DIN right | Yes |
| Rebate space | approx. 6 mm clearance in handle area |
| Installation type | concealed |
| Adjustable draw-in damper | Yes, via valve |
| Draw-in damper in direction of closing movement from | 25 ° |
| Free swing area | 25 ° - 60 ° |
| Draw-in damper in direction of opening movement from | 60 ° |
| Adjustable door opening angle | Yes, stepless |
| Hold-open position adjustable | 80 ° - 140 ° |
| Safety valve againts overload | Yes |
Downloads
LABELLING OBLIGATION: © GEZE GmbH
Variants & Accessories
* Notice about the products displayed
The products mentioned above may vary in form, type, characteristics and function (design, dimensions, availability, approvals, standards etc.) depending on the country. For questions please contact your GEZE contact person or send us an E-Mail .